CLA’s Minnesota Connection Center
Learn More
What to expect: facilities
Step into a bold vision for the future of work and collaboration by experiencing inspiring and flexible tech-enabled spaces that support both in-person and hybrid interactions.
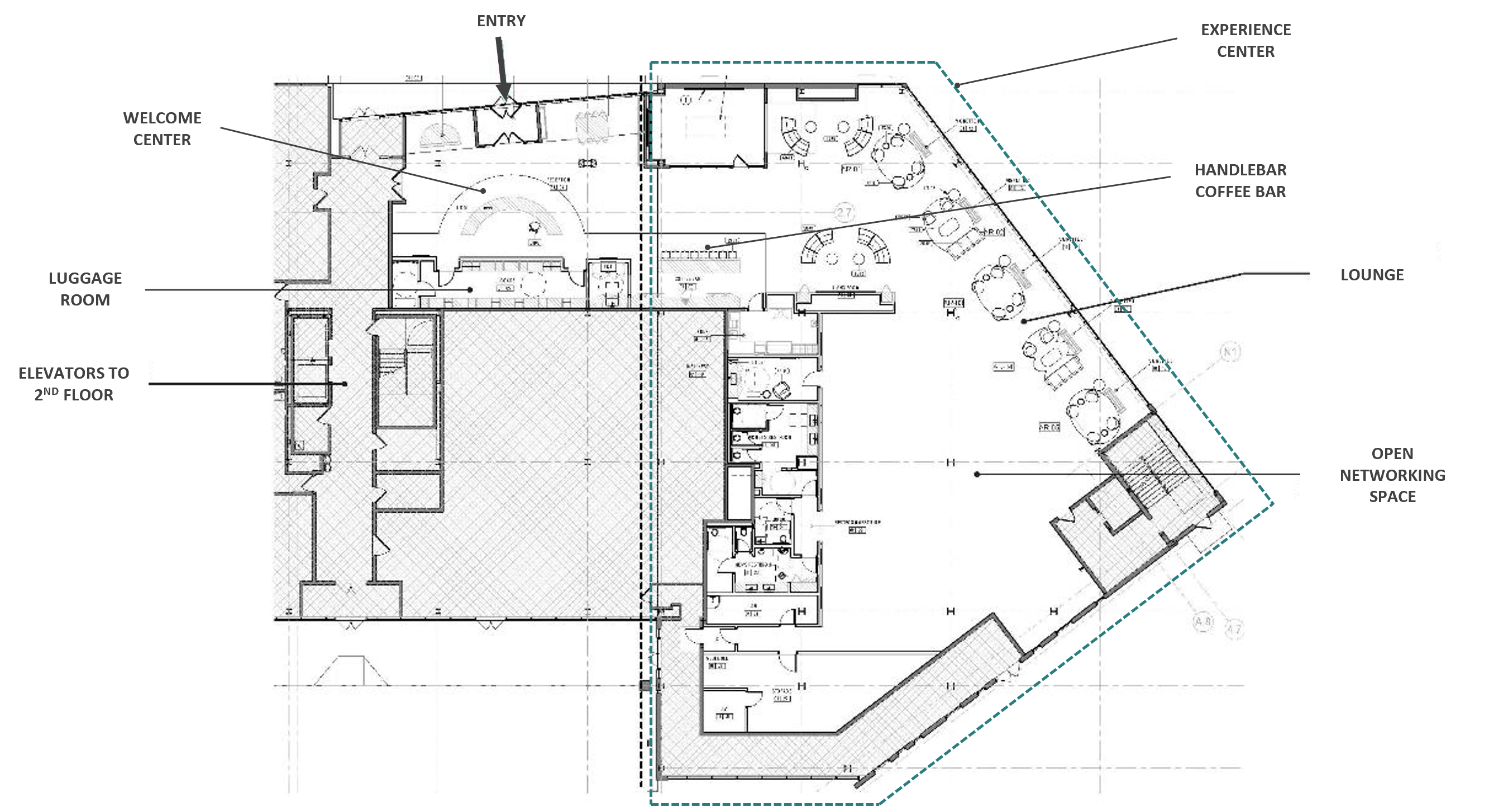
Welcome center — Create a warm and welcoming environment for your guests by greeting them upon arrival.
Luggage room — Accommodates up to 120 suitcases and 120 coats.
AV — The technology integrated throughout the facility makes it even easier to bring people together and stay engaged. Amenities include:
- 37 total 4K TVs throughout the building, ranging from 55” to 98” – ready for presentations, dashboards and digital signage
- Every room outfitted technology ready for plug and play presentation as well as support hybrid meetings
- Announcement system throughout the facility
- Wireless internet throughout facility
- Full time, onsite AV support
- For more detailed information, see ‘Additional audio visual information’ section below
Handlebar coffee bar — A source of warm hospitality, the Handlebar in the first level offers networking essentials of coffee, tea and water. The wide range of beverage options, including Nitro and Cold Brew coffee on tap, will be sure your guests will find what they are looking for.
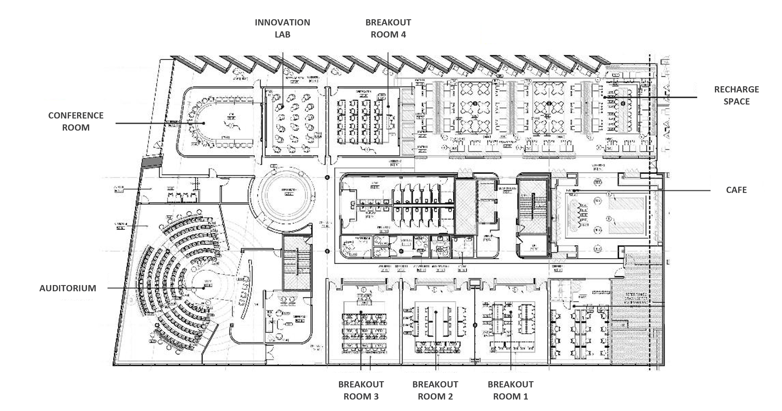
Café— The beautifully designed catering kitchen supports groups of up to 240 for meal service.
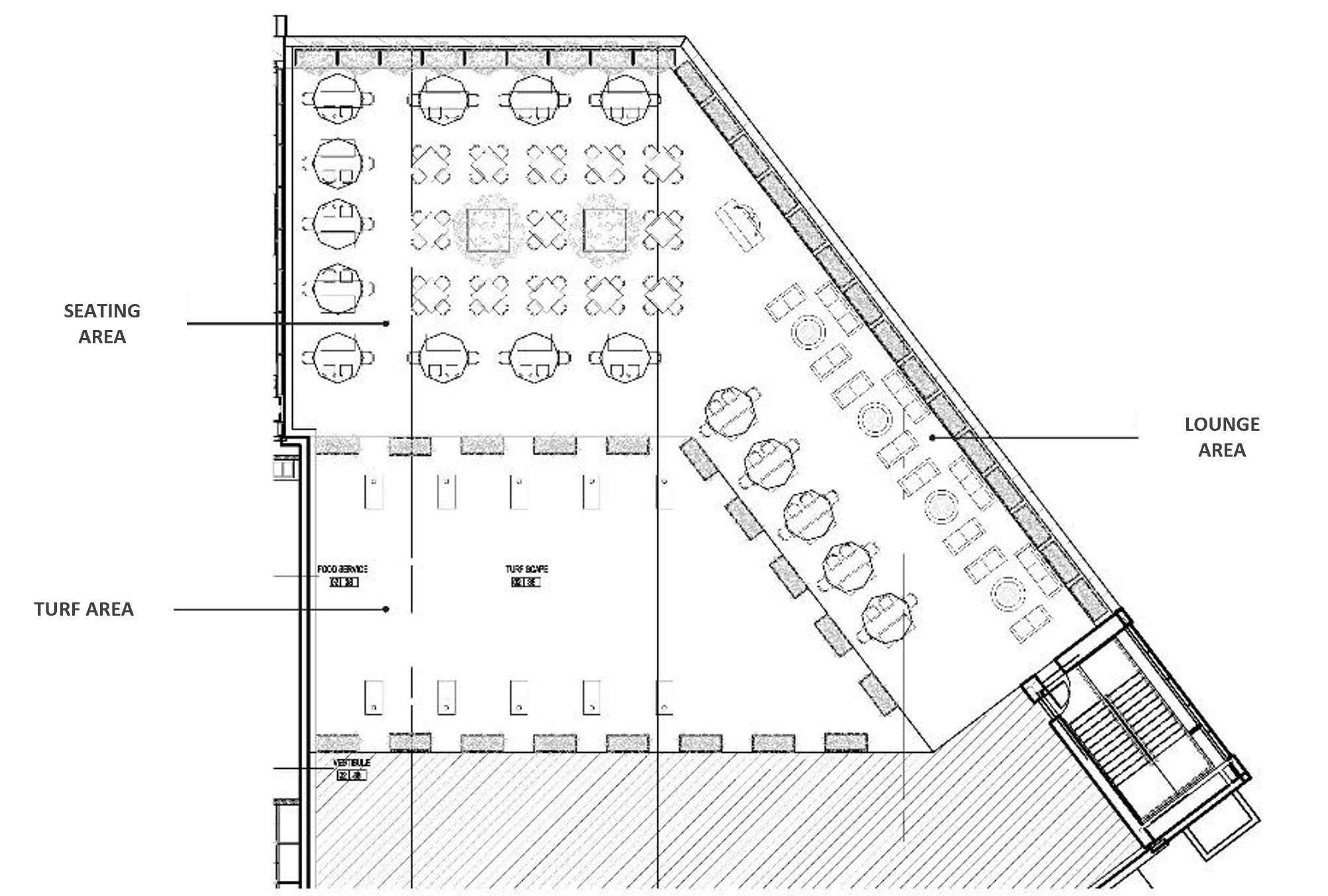
Parking — Free parking is available in the parking ramp attached to the Vikings Lake Innovation Center. Parking is permitted on any level. Use the elevator or stairs to reach Level 1. Access the CLA Connection Center through the doors to Suite 125 from the 1st level lobby. The CLA Connection Center is also accessible by external doors connected to the plaza. The entrance is located opposite the Ticketmaster gates.
| Room | Setup | Capacity |
|---|---|---|
| Experience center Image 1 | Image 2 | Image 3 | Image 4 |
Reception | 220 |
| Terrace Image 1 | Image 2 |
Reception | 200 |
| Seated | 172 | |
| Auditorium Image 1 | Image 2 | Image 3 | Image 4 |
Theater | 167 |
| Innovation lab Image 1 | Image 2 |
Theater | 18 |
| Recharge area Image 1 | Image 2 |
Café | 206 |
| Room | Setup | Capacity |
|---|---|---|
| Breakout room 1, 2, or 3 |
Classroom |
18 16 |
| Breakout room 1 and 2 (combined) | Classroom |
36 36 |
| Breakout room 4 Image 1 | Image 2 |
Classroom | 18 |
| Conference room | U-shape | 23 |
- 7ft H x 12ft W video wall made up of 288 LED tiles.*Resolution 2880 x 1620
- 10+ video screens for your branding/display needs
- Two lavaliers
- Two hand held microphones
- Speakers throughout the room for crisp presentation audio and/or music
- Lighted ceiling rings set at your desired color and brightness
Sound system on patio for music/announcements.
- 9ft H x 24ft W stage screen; concave curve made up of 384 LED tiles using a flexible PCB. *Resolution 5760 x 2160, 4K
- 2 confidence monitors
- 28 ceiling microphones for audience participation
- 5 PTZ cameras for full video coverage to support 4k hybrid meetings/streaming
- 4 handheld mics
- 4 lavalier mics
- Speakers throughout the room for crisp audio
- Assisted listening system with 12 headsets and real-time closed captioning for greater accessibility
- Lighted ceiling rings inside the Auditorium and in the Auditorium foyer to set at your desired color and brightness
- Green Room: 55” LED TV with live feed from the stage
- 85” MS Surface Hub
- Ceiling microphones to support hybrid meetings/streaming
- Speakers throughout the room for crisp audio
- Camera to support hybrid meetings/streaming
- Ten 86” LCD TV’s
- Two lavaliers
- Two hand held microphones
- Speakers throughout the room for crisp presentation audio and/or music
- Presentation/AV system can be arranged to have three, separate presentations (one per breakout area)
- 98” LCD TV
- Ceiling microphones to support hybrid meetings/streaming
- Speakers throughout the room for crisp audio
- Camera to support hybrid meetings/streaming
- 98” LCD TV
- Ceiling microphones to support hybrid meetings/streaming
- Speakers throughout the room for crisp audio
- Camera to support hybrid meetings/streaming
- Each seat comes outfitted with an optional work station including a 24" monitor, keyboard, mouse and USB hub
- Two 98” LCD TVs
- Built in tabletop microphones
- Speakers throughout the room for crisp audio
- Camera to support hybrid meetings/streaming
Grow your team
Experience our connection center’s carefully crafted wellness amenities:
- Wellness rooms (two fully equipped with fridges and sinks)
- Water refill stations
- Fully stocked pantry of healthy snacks: nuts, trail mix, popcorn, granola bars, protein bars, jerky, Greek yogurt, cottage cheese, string cheese, whole fruit, pretzels, chips, fruit snacks
- Beverages: sparkling water, flavored water, electrolyte water, Gatorade, cold brew coffee, nitro coffee, tea, juice, Pepsi products
- Compost and recyclable plateware
- Personal breakout spaces
Experience our connection center’s many entertainment amenities:
- Puzzle table
- Pool table
- Karaoke
- Ping pong table
- Board games
- Lawn games: Corn hole, connect 4, Jenga
- Outdoor lounge area with fire tables
What's nearby
The MN Vikings Museum, 2645 Vikings Circle, Eagan, MN 55121
Training Haus, 2645 Vikings Circle, Eagan, MN 55121
TCO Stadium, 2685 Vikings Circle, Ste. 200, Eagan, MN 55121
Twin Cities Premium Outlets, 3965 Eagan Outlets Pkwy, Eagan, MN 55122
Omni Viking Lakes Hotel, 2611 Nordic Way, Eagan, MN 55121
- Omni Dining:
Kyndred Hearth
Ember & Ice - Omni Wellness:
On-site gym
Spa
Create a meaningful experience
Whether for learning, team building, or something in between, contact us to learn more about CLA’s Minnesota Connection Center. Book part or all of the center for a small, half-day outing or a large, multi-day affair. We offer the facilities, wellness, and fun you’re seeking.






